Portfolio:
  • Private House 1
  • Private House 1
  • Private House 1
  • Private House 1

Private House 1

  • Private House 2
  • Private House 2
  • Private House 2
  • Private House 2

Private House 2

Boa Vista, Portugal

Boa Vista, Portugal

Apartment, Marbella

Unique Luxury Apartment

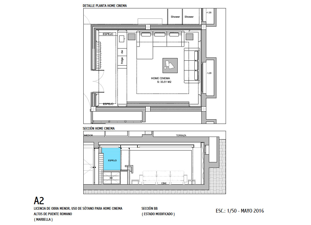
  • Altos de Puente Romano
  • Altos de Puente Romano
  • Altos de Puente Romano
  • Altos de Puente Romano
  • Altos de Puente Romano
  • Altos de Puente Romano

Altos de Puente Romano

  • Banco Rio Bank
  • Banco Rio Bank

Banco Rio Bank

  • Casablanca
  • Casablanca
  • Casablanca

Casablanca, Morocco

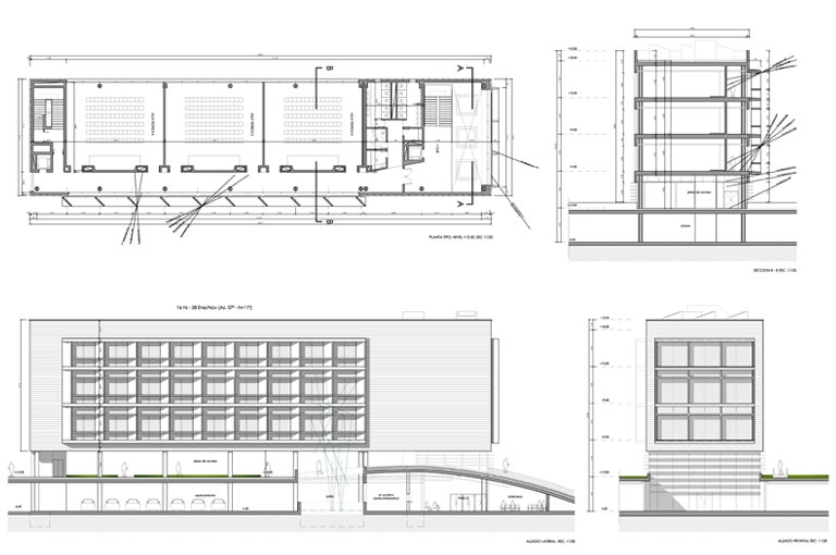
  • University of Medicine
  • University of Medicine
  • University of Medicine
  • University of Medicine

University of Medicine

  • OFFICES in Buenos Aires
  • OFFICES in Buenos Aires

OFFICES: San Isidro

  • Bull Ring
  • Bull Ring

Bull Ring